Huur:Grotestraat 30A10, 7607 CN Almelo - Foto
+14

Grotestraat 30A10 7607 CN Almelo € 1.280,- /mnd

  • Appartement
  • 2 kamers
  • 1 slaapkamer(s)
  • 1 badkamer
  • Bouwjaar 2023
  • 60 m² gebruiksoppervlakte
  • A+++ Energielabel A+++

Beschrijving

TE HUUR in Almelo: Luxe gemeubileerd energiezuinig appartement in hartje centrum

In het centrum van Almelo is een onder architectuur dit appartementencomplex met 12 energiezuinige appartementen gerealiseerd.

Dit luxe appartement is gelegen op de 2e verdieping van het appartementencomplex 'Grotestraat 30' en is tot in de puntjes afgewerkt. Zo beschikt het hele appartement over vloerverwarming onder een moderne PVC vloer, complete badkamer, separaat toilet en een complete inbouwkeuken. Het appartement is prachtig ingericht met hoogwaardige afwerkingen en moderne voorzieningen, zodat je kunt genieten van een comfortabel en luxe levensstijl.

Het appartement heeft een groot balkon | terras aan de achterzijde waar je kunt genieten het mooie groene uitzicht op de tuinen van Huize Almelo. De toegang van het woongebouw en het parkeerterrein is toegankelijk vanaf de Grotestraat (voorzijde) en Hof van Gulick (achterzijde)

INDELING:
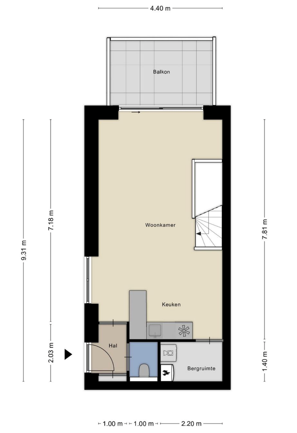
Begane grond: Hoofd entree met videofoon-installatie, brievenbussen, bergingen, trapopgang en lift.
Vanuit de centrale hal zijn alle vertrekken bereikbaar. U komt binnen in de hal, met toegang tot een separaat toilet voorzien van een hangend toilet en fonteintje. De ruime woonkamer is door de vele raampartijen een bron van licht en ruimte en geeft toegang, middels de schuifpui, tot het balkon aan de achterzijde waar je heerlijk kunt wegkijken in het groen in de verte. De open keuken is van alle gemakken voorzien en beschikt over een inductie-kookplaat, afzuigkap, vaatwasser, oven en koelkast. Verder beschikt het appartement over extra bergruimte met wasmachine- en drogeraansluiting, warmtepomp en mechanische ventilatie. De slaapkamer is te bereiken via een trap naar beneden. Aangrenzend aan de slaapkamer vindt u een royale badkamer met wastafel, inloopdouche en design radiator.

BIJZONDERHEDEN:
- Huurprijs: € 1.600,-- per maand
- Servicekosten: € 70,-- per maand
- Parkeerplaats: € 50,-- per maand
- Meubilering: € 250,-- per maand
- Woonoppervlakte: ca 60 m2
- Beschikbaar per 1 december 2025
- Energiezuinig appartement
- Voorzien van vloerverwarming
- 2 balkons
- Energielabel A+++

De winkels met een gevarieerd aanbod en de centrumvoorzieningen bevinden zich op loopafstand. Culturele aangelegenheden in Almelo zijn onder meer het Theaterhotel, Preston Palace en Theater Hof 88. Daarnaast vinden er in Almelo ruim 160 evenementen per jaar plaats waardoor er voor iedereen altijd wat te doen is. Almelo is een stad met veel gezichten en een stad met karakter. Een tikkeltje eigenzinnig, gesierd met de Twentse nuchterheid en zeer gastvrij. Almelo is een bijzondere mengeling van oud en nieuw. Geïnteresseerd? Schrijf u in op www.verhuurpro.nl of stuur een mail naar almelo@verhuurpro.nl.

Deze advertentie op internet en op facebook is slechts ter informatie en dus geheel vrijblijvend.
Aan eventuele onjuistheden kunnen geen rechten worden ontleend.

Kaart

Kenmerken

Overdracht

Referentienummer
01601
Huurprijs
€ 1.280,- per maand
Borg
€ 2.500,-
Servicekosten
€ 70,- per maand
Aanvaarding
In overleg
Aangeboden sinds
Vrijdag 28 november 2025

Bouw

Type object
Appartement, maisonnette
Woonlaag
3e woonlaag
Soort bouw
Bestaande bouw
Toegankelijkheid
Mindervaliden
Senioren
Bouwperiode
2023
Keurmerken
Beveiliging
Brandveiligheid
Energie prestatie advies
Isolatievormen
Dakisolatie
Driedubbel glas
Dubbel glas
HR-glas
Muurisolatie
Spouwmuren
Vloerisolatie
Volledig geïsoleerd

Oppervlaktes en inhoud

Woonoppervlakte
60 m²
Woonkameroppervlakte
31,59 m²
Inhoud
165 m³
Oppervlakte gebouwgebonden buitenruimte
20 m²
Balkonoppervlakte
22,4 m²

Indeling

Aantal bouwlagen
2
Aantal kamers
2 (waarvan 1 slaapkamer)
Aantal badkamers
1 (en 1 apart toilet)

Locatie

Ligging
In centrum

Energieverbruik

Energielabel
A+++

Uitrusting

Aantal parkeerplaatsen
1
Verwarmingssysteem
Vloerverwarming
Warmtepomp
Ventilatie methode
Mechanische ventilatie
Heeft een balkon
Ja
Beschikt over een internetverbinding
Ja
Heeft zonnepanelen
Ja
Heeft ventilatie
Ja

Vereniging van Eigenaren

Ingeschreven bij de KvK
Ja
Jaarlijkse vergadering
Ja
Periodieke bijdrage
Ja
Meer jaren onderhoudsplan
Ja
Onderhoudsverwachting
Ja
Opstal verzekering
Ja

Kadastrale gegevens

Kadastrale aanduiding
Almelo B 12390
Omvang
Appartementsrecht of complex
Eigendomsituatie
Eigen grond